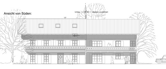
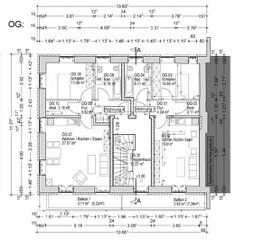
Umbau einer ehemaligen Bahnhofsgaststätte in Warngau
zu einem Wohnhaus mit 5 Wohnungen
Öffentliche Bauvorhaben:
- WPE_Wallenburger Str.
- Erweiterung Kita Fischbachau
- Sozialer Wohnungsbau in Osterwarngau
- Bahnhofsgaststätte
- Mensa Feldkirchen – Westerham
- Kinderkrippe Frühlingsdorf Holzkirchen
- Kita Warngau
- Geräteraum für die Sporthalle Warngau
- Mensa Gymnasium Miesbach
- Feuerwehr Feldkirchen-Westerham
- Grund- und Teilhauptschule Valley
- Sporthalle an der Schule Valley – Neubau
- Dachsanierung Landratsamt Miesbach
- Dreifachsporthalle Feldkirchen-Westerham
- Ökologisches Bildungszentrum München
Sanierung – Renovierung: