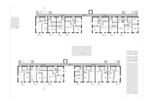
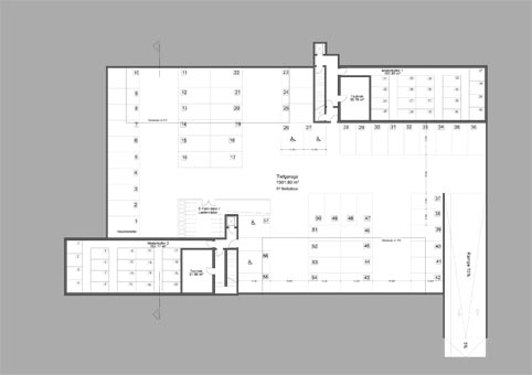
Sozialer Wohnungsbau in Großkarolinenfeld

Planung einer Siedlung mit bis zu 44 geförderten Wohnungen

in Holz-Hybridbauweise   | – Machbarkeitsstudie

Comments are closed.